HOME
Works
ABOUT ME
Contact
HOME
Works
ABOUT ME
Contact
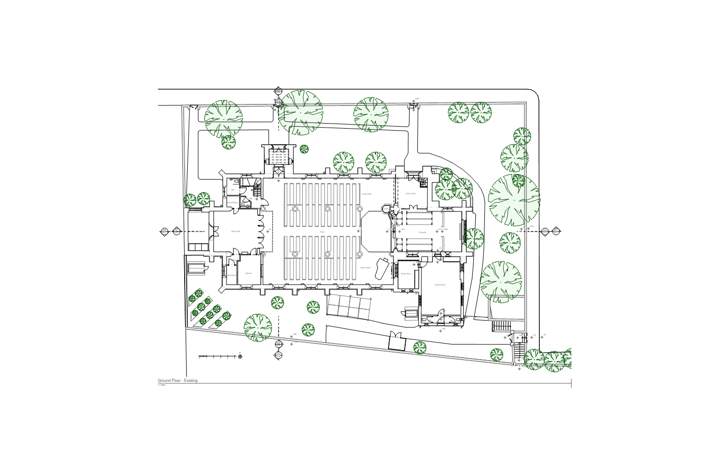
Christ Church - London | Point Cloud to Bim & Render
You may also like
BioArchitectural Design and Natural Build
2024
Application Project (Bank Barn / Birdseye)
2021
Point Cloud to Bim & Render
2024
Villa | Sakarya - Turkey
2021
Villa Project | Trabzon - Turkey
2021
Winter Garden Design
2021
Freelance
2021
Nursing Home | Architecture Student Project 5
2021
Aquatic Life Institute
2024
Kemerli Ev
2025
↑
Back to Top